When a century-old bridge stood between the City of Clare and a fully connected regional trail network, Clark Dietz engineers helped bring new life to a historic crossing, ensuring safe passage for pedestrians and cyclists while preserving a piece of Michigan’s railroad heritage.
The Pere Marquette Rail Trail, part of a 90-mile non-motorized pathway stretching from downtown Midland to Clare, had long been missing a key link known as the “Clare Gap.” To close it, Clark Dietz provided bridge rehabilitation and traffic services on this Michigan Department of Transportation (MDOT) project, that ran over the South Branch Tobacco River in Clare County. Clark Dietz served as a subconsultant to Prein&Newhof, who led trail reconstruction work, as part of the greater project.
Project Scope: Breathing New Life Into a Century-Old Structure
The 2.63-mile stretch of trail that was improved, including the existing 1900s bridge, runs alongside M-115 and several local routes, extending from west of the South Branch Tobacco River to Pine Street in Clare.

City of Clare directory
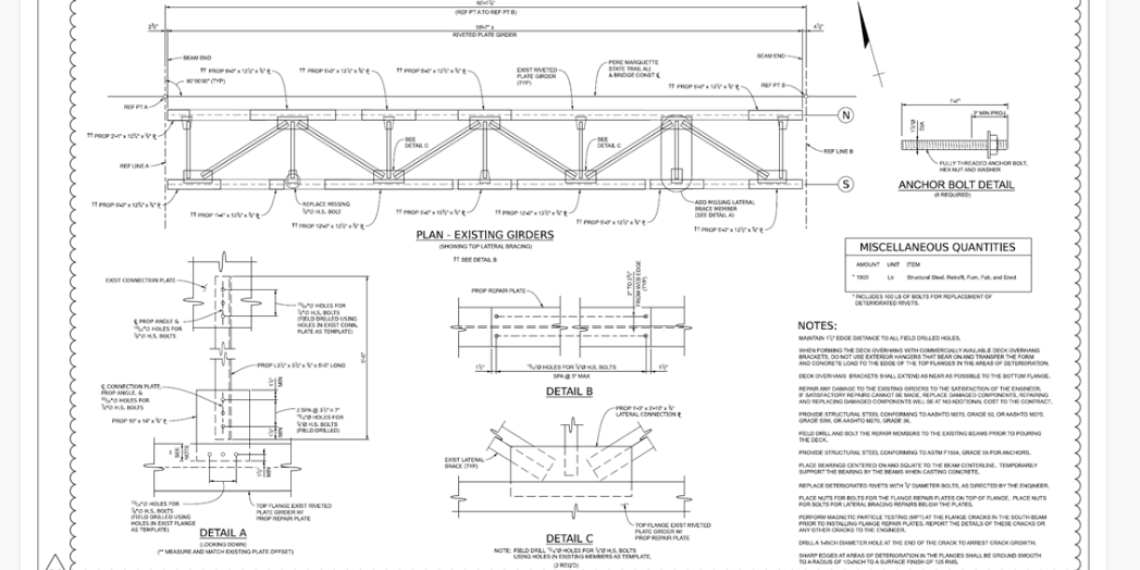
Clark Dietz performed scoping and field inspections of the existing bridge, followed by a detailed structural analysis and repair design. The team developed solutions for rehabilitating the truss girders and abutments, ensuring the structure could safely support pedestrian use and accommodate emergency or maintenance vehicles.
“Our scope of work was to rehabilitate the bridge and bring it back to safe use for pedestrians and non-motorized vehicles,” said Thomas Sereseroz, PE, Structural Practice Lead and project team member.
The project also included Maintenance of Traffic (MOT) design and signing support by Clark Dietz, while Prein&Newhof led the trail reconstruction work. Together, the team achieved MDOT’s goal of creating a continuous, ADA-compliant connection through Clare.
Managing Construction, Pedestrian Access, and Signing
Beyond bridge rehabilitation, the trail extension required careful construction staging through downtown Clare. Maintaining safe pedestrian routes and uninterrupted access to local businesses was one of the project’s greatest challenges.
Engineering Term: Construction Staging
Construction staging refers to the planned sequence and layout of construction activities, traffic control, and material and equipment placement used to complete a project in phases while maintaining safety, minimizing disruption, and meeting design and schedule requirements.
In bridge construction, staging also includes temporary setups and sequencing strategies that allow crews to build or rehabilitate structures efficiently while reducing impacts on traffic, nearby businesses, and the environment.
“Anytime you’re constructing through a downtown, the challenge is keeping everything accessible,” Burgess explained. “We had to separate and delineate the ADA accessible paths and work zone so pedestrians could still reach downtown businesses while improvements were underway.”

Bike route signage
To support that goal, Clark Dietz created pedestrian detour maps and detailed staging plans, temporarily rerouting foot traffic around work areas while maintaining access for vehicles and deliveries. Even when on-street parking was temporarily removed, the team ensured clear and safe paths through the work zone.
The Clark Dietz team also designed the signing plan, coordinated by signing designer Lee Streeter, which was directly integrated into Prein&Newhof’s construction plans.
“They wanted to make sure the trail signing was consistent and continuous,” Burgess said. “Most of the signing occurred at roadway and railroad crossings, and through downtown. We prepared the design and quantities and then coordinated so they could implement it within their construction plan sheets.”
Challenges in the Field
As work began, crews encountered unforeseen deterioration beyond the project’s original scope.
“During construction, we found unexpected damage to the abutments and more intense concrete spalling, or surface deterioration, than anticipated,” Sereseroz recalled. “We had to do some field investigation to determine how severe the damage was, then come up with design plans to repair it.”
Supporting the existing girders while reinforcing damaged components added complexity to the construction sequence. The Clark Dietz team collaborated closely with MDOT and the contractor to design temporary support systems and an innovative temporary formwork attachment method that allowed safe deck and railing construction without compromising the bridge’s integrity. The attachments for the temporary formwork connect to the existing girders to avoid excessive torsion.

Before image of the Pere Marquette Bridge
“Taking a bridge that old and bringing it up to current standards was challenging but rewarding,” Sereseroz said. “It’s impressive that we were still able to utilize most of the original structure.”
Community Impact: A Safer Connection Across Clare
Before this project, trail users had to detour across a high-traffic highway to continue along the Pere Marquette Rail Trail. The rehabilitated bridge now provides a safe, continuous route across the Tobacco River, restoring connectivity and enhancing user experience.
“People seem really happy to have this connection open again,” Sereseroz noted. “Before, trail users had to cross a highway to keep going. Now, they can safely continue along the trail and enjoy the scenery over the river.”
A Collaborative Success
Through innovative engineering, adaptive design, and seamless collaboration with MDOT and Prein&Newhof, the Pere Marquette Non-Motorized Trail project successfully closed the “Clare Gap.” The restored bridge and improved downtown trail segment stand as a testament to how thoughtful rehabilitation can preserve history while improving safety, accessibility, and community connectivity.
Read more about this project on our project portfolio.
Read about MDOT’s Transportation Enhancement (TE) Program involving the Pere Marquette Rail Trail.
Read information about this trail from the Michigan Trails Magazine.
Photos provided by Prein&Newhof; thank you for your support!








